London
+) 22 256 7890
architecture@hub.com
Find Us
290 Maryam Springs 260,
Courbevoie, Paris, France
London
+) 22 256 7890
architecture@hub.com
Find Us
290 Maryam Springs 260,
Courbevoie, Paris, France
290 Maryam Springs 260,
Courbevoie, Paris, France
Interior design is the art and science of enhancing the interiors.
Contact Us
Email: aamir@matrixpk.com
Tel: +92 300 8485536
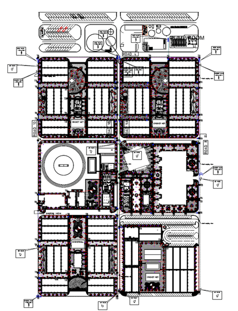
DESIGN OF BUILDINGS AND INFRASTRUCTURE AT TRIPLE BAY AMAALA CAMP
Scope of Work:
DESIGN OF BUILDINGS AND INFRASTRUCTURE
AT NEOM NCE2 CAMP
Scope of Work:
Adding {{itemName}} to cart
Added {{itemName}} to cart